Meine Favoriten

Huchting

Die Stadtteilfiliale der Sparkasse Bremen ist ein lebendiger Ort der Begegnung, an dem Menschen zusammenkommen, sich austauschen und gemeinsam mehr erleben als nur Banking.

Die Stadtteilfiliale ist ein lebendiger Treffpunkt mitten im Quartier – offen für alle, die sich austauschen, informieren oder einfach zusammenkommen möchten. Mit einer modernen, an den Bedürfnissen der Menschen orientierten Ausstattung und einem vielseitigen Veranstaltungsangebot schafft die Sparkasse Bremen Raum für Begegnungen. So fördert sie aktiv das Miteinander im Stadtteil und bringt Anwohnende, Vereine und lokale Gewerbetreibende miteinander ins Gespräch.

Ausstattung in der Stadtteilfiliale Huchting

  • Community-Tisch (90 x 410 cm)
  • 12 Stühle am Community-Tisch
  • 40 Veranstaltungsstühle auf Stapelwagen
  • Mehrere Stehtische
  • Garderobe mit 20 Kleiderbügeln

  • Kaffeevollautomat
  • Getränkekühlschrank
  • Geschirr/Gläser

  • WIFI
  • 84“Monitor mit Präsentationstechnik, Anschluss über Notebook/Tablet & USB
  • Deckenlautsprecher im Aktionsbereich
  • 42“Monitor in den Besprechungskuben

  • Schwenkbare Deckenstrahler (Spot & Flood) zur Inszenierung Ihrer Produkte & Exponate

Möglichkeiten zur Nutzung der POS-Flächen

Stadtteilfiliale Huchting – Grundriss Showrooms und Pop-up-Stores
Showrooms & Pop-up-Stores

  • Nutzung der Empfangs- und/oder Aktionsfläche als Shop-in-Shop-Lösung
  • Ausschließlich während der Öffnungszeiten
  • Bis ca. 6 m² Verkaufsfläche möglich

Was muss durch den Partner beigestellt werden?

  • Verkaufstheke
  • Verlängerungskabel, Mehrfachsteckdose
  • Barhocker
  • Kassentechnik

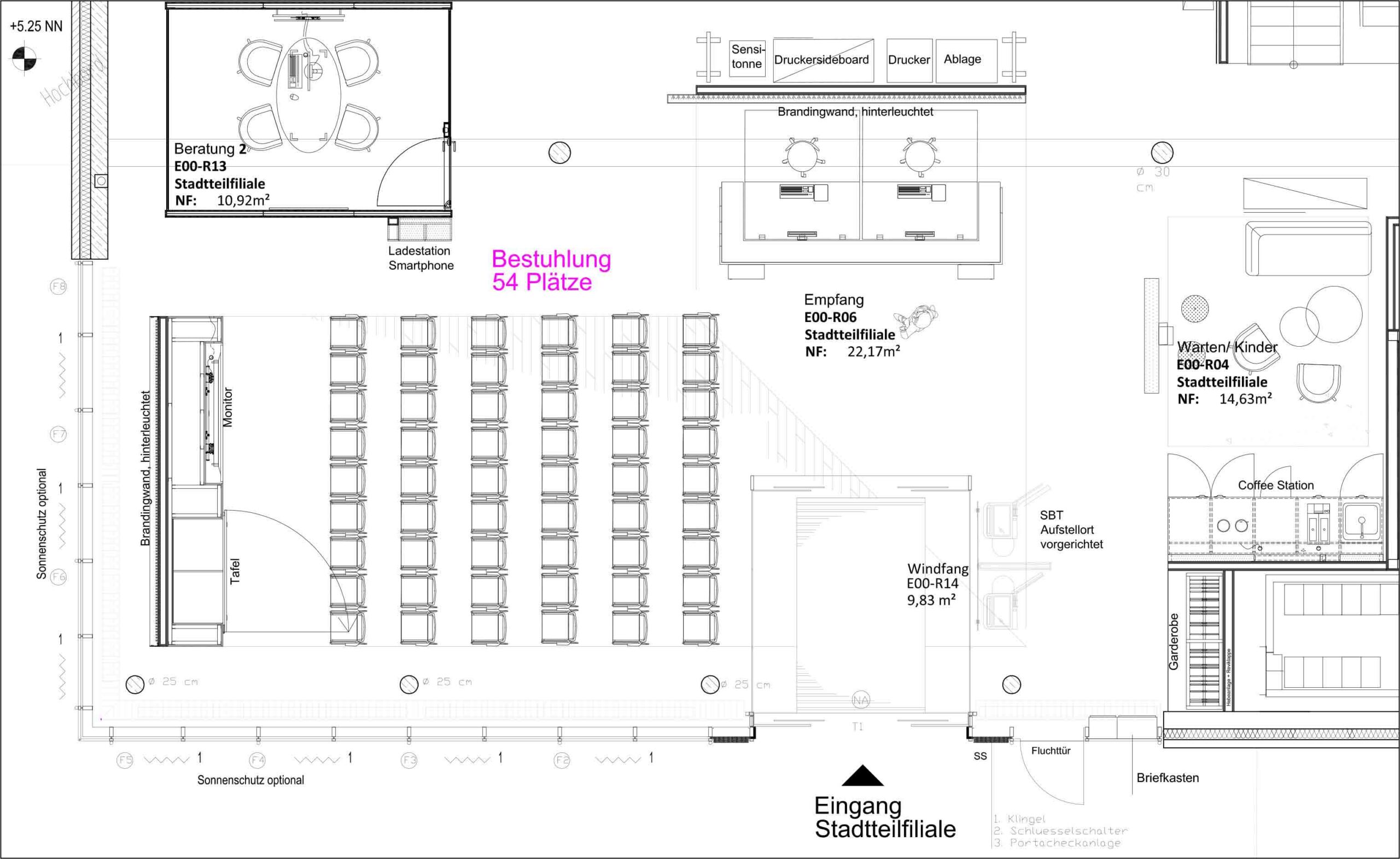
Stadtteilfiliale Huchting – Grundriss Lesungen
Lesungen & Vorträge

  • Nutzung des gesamten Community-Bereiches möglich
    • Bis ca. 55m² Veranstaltungsfläche verfügbar
    • Außerhalb der Öffnungszeiten
  • Nutzung des Community-Tisches bis 12 Gäste auch während der Öffnungszeiten möglich
  • Bestuhlung/Sitzmöglichkeiten ohne Tisch bis max. 54 Gäste
  • Stehtische bis max. 80 Gäste

Was muss durch den Partner beigestellt werden?

  • Selbst benötigte Technik (Laptop, Tablet etc.)

Stadtteilfiliale Huchting – Grundriss Ausstellungen
Ausstellungen

  • Nutzung der Empfangs- und Aktionsfläche möglich
    • Bis ca. 6 m² Ausstellungsfläche verfügbar
  • Ausschließlich während der Öffnungszeiten (Ausstellungseröffnung ausgenommen)
  • Schwenkbare Deckenstrahler zur Inszenierung Ihrer Bilder/Exponate

Was muss durch den Partner beigestellt werden?

  • Stellwände, sonstige Möbel für die Exponate

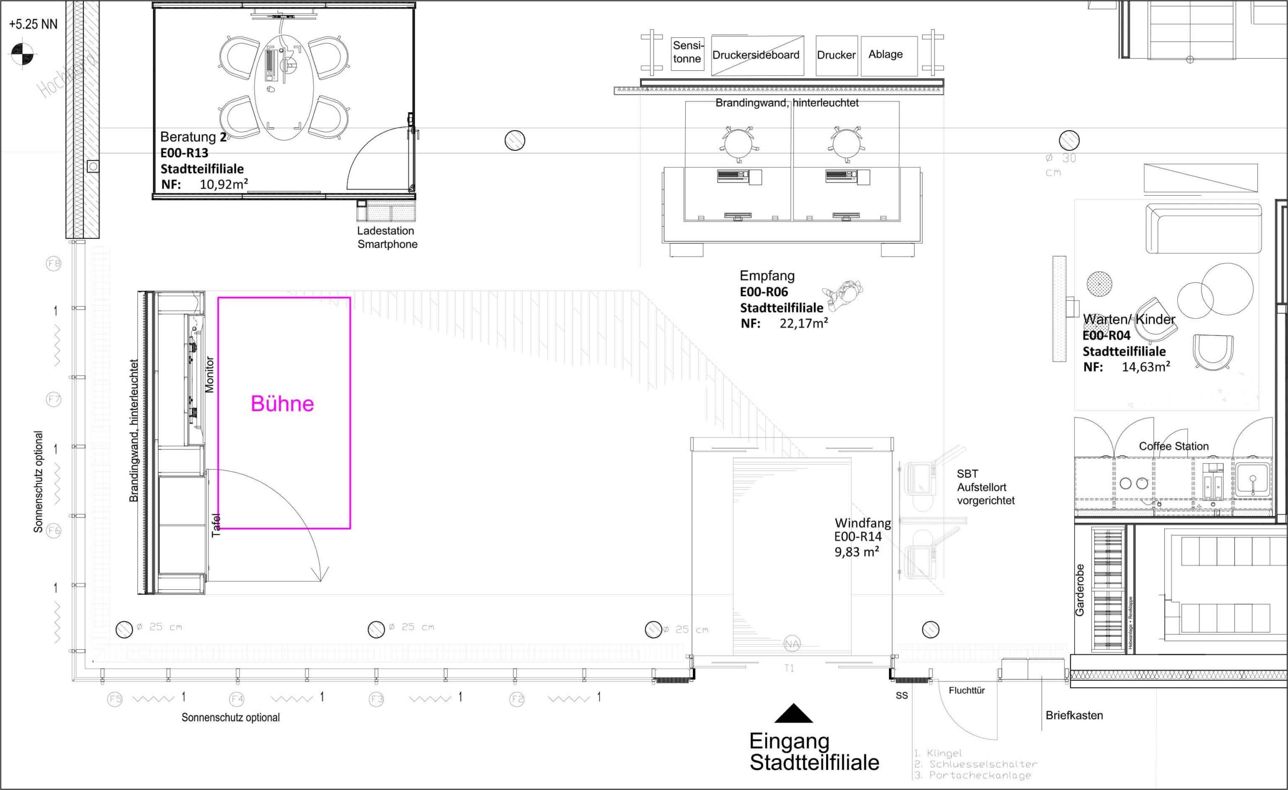
Stadtteilfiliale Huchting – Grundriss Konzerte
Konzerte

  • Nutzung des gesamten Community-Bereiches
    • Bis ca. 55 m² Veranstaltungsfläche verfügbar
    • Außerhalb der Öffnungszeiten
  • Bühnenaufbau möglich
  • Unbestuhlt bis ca. 80 Gäste

Was muss durch den Partner beigestellt werden?

  • PA-Anlage
  • Bühnentechnik

Stadtteilfiliale Huchting – Grundriss Meetings und Sitzungen
Meetings & Sitzungen

  • Nutzung des gesamten Community-Bereiches möglich
    • Bis ca. 55 m² Veranstaltungsfläche verfügbar
    • Außerhalb der Öffnungszeiten
  • Nutzung des Community-Tisches auch während der Öffnungszeiten möglich
    • Standardbestuhlung 12 Plätze
  • Nutzung von Beratungs-/Besprechungskuben
    • 11 m² je kleine Kube
    • Bis max. 4 Personen je Kube

Was muss durch den Partner beigestellt werden?

  • Selbst benötigte Technik (Laptop, Tablet etc.)

POS-Disclaimer

Zu Veranstaltungen zählen z.B.:

– Vorträge
– Lesungen
– Konzerte
– Kurse/Workshops/Schulungen
– Ausstellungen

Gastgeber ist grundsätzlich die Sparkasse
Inhaltlich verantwortlich ist entweder der externe Partner oder – bei eigenen Themen – die Sparkasse

Mit der Stadtteilfiliale will die Sparkasse Bremen einen Treffpunkt schaffen, der über das eigentliche Kerngeschäft hinaus zur Anlaufstelle für die Bürger des Stadtteils wird.

Dabei tragen die Gestaltung und Ausstattung der Filiale, sowie die individuellen Angebote und Veranstaltungen den Bedürfnissen der Menschen aus dem Stadtteil Rechnung.

Die Sparkasse möchte sich auf diesem Wege mit den Anwohnern, Vereinen und lokalen Gewerbetreibenden besser vernetzen.

Die Veranstaltungen und Pop-Up Stores dienen zur Pflege der Beziehungen im Stadtteil und sollten entweder einen regionalen Bezug haben, oder den Interessen der Zielgruppen im Stadtteil entsprechen.

Durch attraktive Themen sollen neue Kundengruppen erschlossen werden

Kundenkontakte sollen ausgebaut und intensiviert werden.

Neue Vertriebsansätze sollen geschaffen werden.

Ziel ist der Ausbau des Kundengeschäftes

Die Veranstaltungen dürfen weder parteipolitische, religiöse, noch rassistische oder diskriminierende Inhalte haben.

Die Veranstaltungen oder das Waren- und Dienstleistungsangebot dürfen nicht dazu geeignet sein, die Sparkasse in Misskredit zu bringen.

Die Inhalte werden durch den jeweiligen Partner gestaltet und mit der Sparkasse abgestimmt.

Der Charakter einer Veranstaltung, bzw. des Waren- und Dienstleistungsangebotes sollte zur jeweiligen Zielgruppe im Stadtteil passen oder ggf. von allgemeinem Interesse sein.

Die Partner sollen regionalen Bezug haben, bzw. aus dem Stadtteil kommen.

Der Mehrwert für die Sparkasse muss nachvollziehbar sein.

Die Entscheidung darüber, ob mit einem Partner zusammengearbeitet wird bzw. eine Veranstaltung zugelassen wird obliegt allein der Sparkasse.

Nutz doch die SPOT App!

Zum Inhalt springen