
Findorff
Die Stadtteilfiliale der Sparkasse Bremen ist ein Ort der Begegnung, der weit über klassische Bankdienstleistungen hinausgeht.
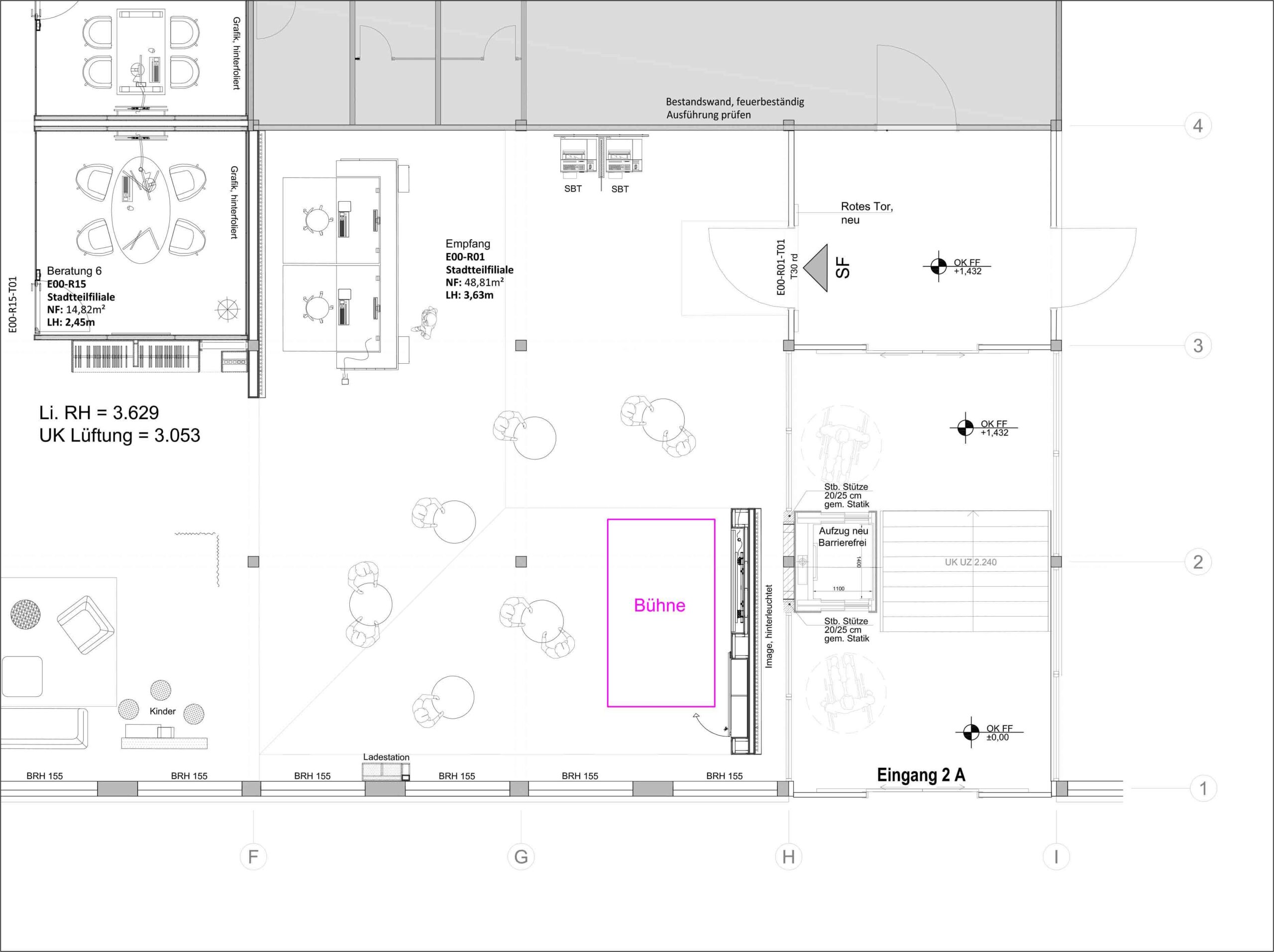
Die Stadtteilfiliale ist ein zentraler Treffpunkt für die Menschen im Viertel. Sie überzeugt mit einer bedarfsgerechten Gestaltung und Ausstattung sowie einem Angebot an Veranstaltungen, das gezielt auf die Bedürfnisse der Nachbarschaft abgestimmt ist. Damit stärkt die Sparkasse Bremen das Miteinander und fördert den Austausch zwischen Anwohnern und Anwohnerinnen, Vereinen sowie dem lokalen Gewerbe.
Ausstattung in der Stadtteilfiliale Findorff
- Community-Tisch (90 x 560 cm)
- 16 Stühle am Community-Tisch
- 20 Veranstaltungsstühle auf Stapelwagen
- Mehrere Stehtische
- Garderobe mit 30 Kleiderbügeln
- Kaffeevollautomat
- Getränkekühlschrank
- Geschirr/Gläser
- WIFI
- 84“Monitor mit Präsentationstechnik, Anschluss über Notebook/Tablet & USB
- Deckenlautsprecher im Aktionsbereich
- 42“Monitor in den Besprechungskuben
- Schwenkbare Deckenstrahler (Spot & Flood) zur Inszenierung Ihrer Produkte & Exponate
- Galerieschiene mit Aufhängeseilen & Bilderhaken
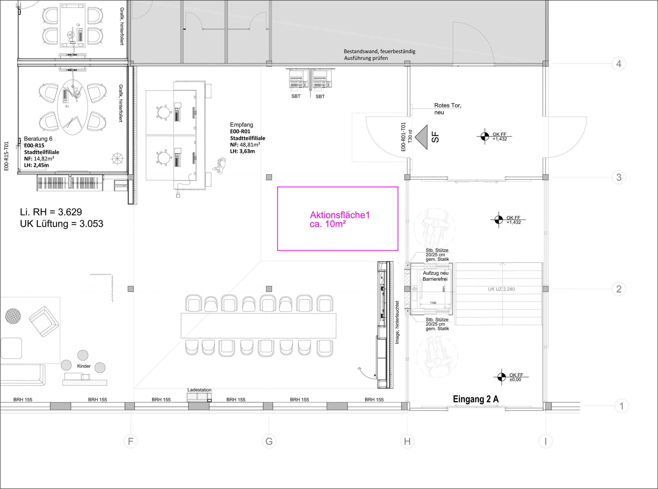
Möglichkeiten zur Nutzung der POS-Flächen

Showrooms & Pop-up-Stores
- Nutzung der Empfangs- und/oder Aktionsfläche als Shop-in-Shop-Lösung
- Ausschließlich während der Öffnungszeiten
- Bis ca. 10 m² Verkaufsfläche möglich
Was muss durch den Partner beigestellt werden?
- Verkaufstheke
- Verlängerungskabel, Mehrfachsteckdose
- Barhocker
- Kassentechnik

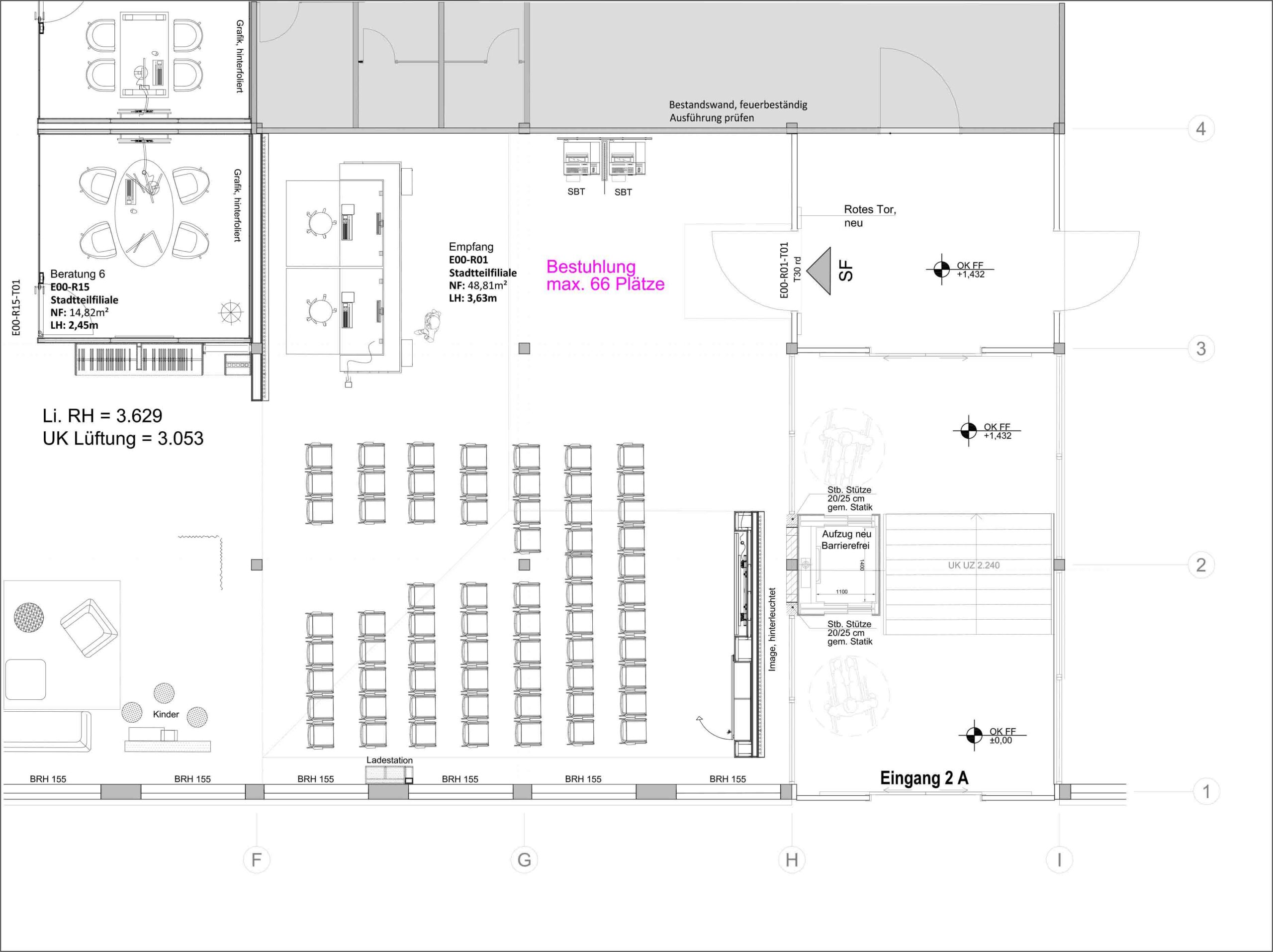
Lesungen & Vorträge
- Nutzung des gesamten Community-Bereiches möglich
- Bis ca. 70m² Veranstaltungsfläche verfügbar
- Außerhalb der Öffnungszeiten
- Nutzung des Community-Tisches bis 16 Gäste auch während der Öffnungszeiten möglich
- Bestuhlung/Sitzmöglichkeiten ohne Tisch bis max. 66 Gäste
- Stehtische bis max. 100 Gäste
Was muss durch den Partner beigestellt werden?
- Selbst benötigte Technik (Laptop, Tablet etc.)

Ausstellungen
- Nutzung der Empfangs- und Aktionsfläche möglich
- Bis ca. 10 m² Ausstellungsfläche verfügbar
- Ausschließlich während der Öffnungszeiten (Ausstellungseröffnung ausgenommen)
- 8,00 m Galerieschiene mit Aufhängeseilen & Bilderhaken
- Schwenkbare Deckenstrahler zur Inszenierung Ihrer Bilder/Exponate
Was muss durch den Partner beigestellt werden?
- Stellwände, sonstige Möbel für die Exponate

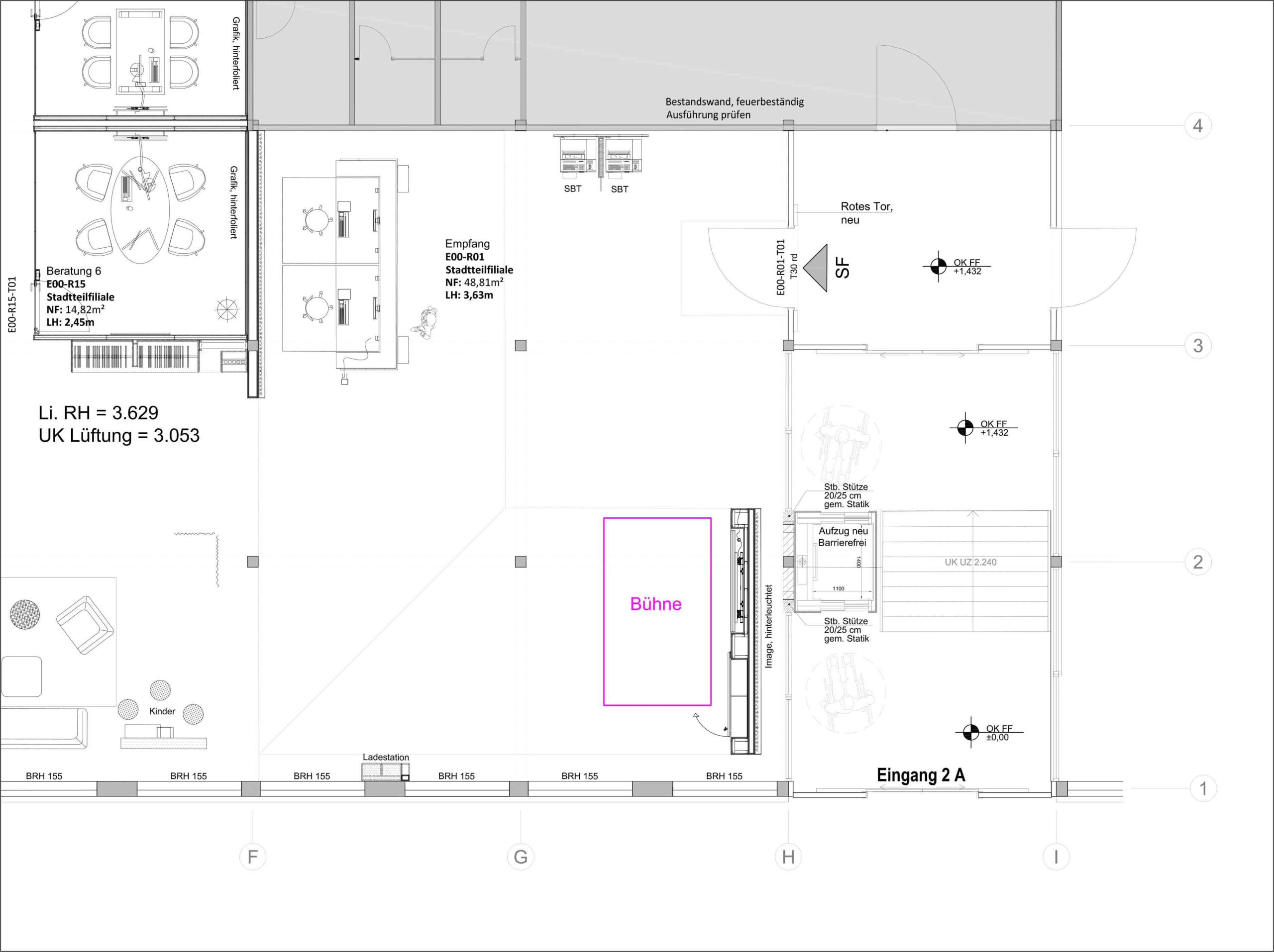
Konzerte
- Nutzung des gesamten Community-Bereiches
- Bis ca. 70m² Veranstaltungsfläche verfügbar
- Außerhalb der Öffnungszeiten
- Bühnenaufbau möglich
- Unbestuhlt bis ca. 100 Gäste
Was muss durch den Partner beigestellt werden?
- PA-Anlage
- Bühnentechnik

Meetings & Sitzungen
- Nutzung des gesamten Community-Bereiches möglich
- Bis ca. 70m² Veranstaltungsfläche verfügbar
- Außerhalb der Öffnungszeiten
- Nutzung des Community-Tisches auch während der Öffnungszeiten möglich
- Standardbestuhlung 16 Plätze
- Nutzung von Beratungs-/Besprechungskuben
- 15 m² je kleine Kube
- Bis max. 4 Personen je Kube
Was muss durch den Partner beigestellt werden?
- Selbst benötigte Technik (Laptop, Tablet etc.)
POS-Disclaimer
Zu Veranstaltungen zählen z.B.:
– Vorträge
– Lesungen
– Konzerte
– Kurse/Workshops/Schulungen
– Ausstellungen
Gastgeber ist grundsätzlich die Sparkasse
Inhaltlich verantwortlich ist entweder der externe Partner oder – bei eigenen Themen – die Sparkasse
Mit der Stadtteilfiliale will die Sparkasse Bremen einen Treffpunkt schaffen, der über das eigentliche Kerngeschäft hinaus zur Anlaufstelle für die Bürger des Stadtteils wird.
Dabei tragen die Gestaltung und Ausstattung der Filiale, sowie die individuellen Angebote und Veranstaltungen den Bedürfnissen der Menschen aus dem Stadtteil Rechnung.
Die Sparkasse möchte sich auf diesem Wege mit den Anwohnern, Vereinen und lokalen Gewerbetreibenden besser vernetzen.
Die Veranstaltungen und Pop-Up Stores dienen zur Pflege der Beziehungen im Stadtteil und sollten entweder einen regionalen Bezug haben, oder den Interessen der Zielgruppen im Stadtteil entsprechen.
Durch attraktive Themen sollen neue Kundengruppen erschlossen werden
Kundenkontakte sollen ausgebaut und intensiviert werden.
Neue Vertriebsansätze sollen geschaffen werden.
Ziel ist der Ausbau des Kundengeschäftes
Die Veranstaltungen dürfen weder parteipolitische, religiöse, noch rassistische oder diskriminierende Inhalte haben.
Die Veranstaltungen oder das Waren- und Dienstleistungsangebot dürfen nicht dazu geeignet sein, die Sparkasse in Misskredit zu bringen.
Die Inhalte werden durch den jeweiligen Partner gestaltet und mit der Sparkasse abgestimmt.
Der Charakter einer Veranstaltung, bzw. des Waren- und Dienstleistungsangebotes sollte zur jeweiligen Zielgruppe im Stadtteil passen oder ggf. von allgemeinem Interesse sein.
Die Partner sollen regionalen Bezug haben, bzw. aus dem Stadtteil kommen.
Der Mehrwert für die Sparkasse muss nachvollziehbar sein.
Die Entscheidung darüber, ob mit einem Partner zusammengearbeitet wird bzw. eine Veranstaltung zugelassen wird obliegt allein der Sparkasse.